施設・設備

2015年7月1日更新

法科大学院棟

 法科大学院棟(百周年記念館)は渋谷キャンパス若木タワー隣りに位置します。
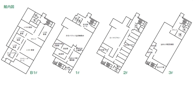
 百周年記念館1階の事務室では、講義に関するお知らせや連絡をチェックできます。2階に昇るとローライブラリーがあり、本を借りたり、データベースで検索してデジタル資料を入手したりできますが、教員研究室がローライブラリーの周りを囲んでいますので、教員に質問や相談をすることが容易にできる利点があります。教室は地下1階のフロア全体で、学生の自習室は3階にありますので、一つの建物で完結するロケーションの良さを誇っています。
 また、棟内には、東京弁護士会との提携による「渋谷パブリック法律事務所」が設置されており、法科大学院との連携教育を行っています。絶えず実務家の存在を身近に感じることで、法曹への意識を高めていける環境があります。
司法試験合格者の声鈴木麻理絵さん渋谷キャンパス全体図

※施設見学はいつでもできます。
(平日、月~土の9:00~17:00、ただし12:40~13:40を除く)
 ご希望の方は法科大学院事務課(03-5466-0492)にご連絡ください。

学習スペース

  • 自習室

     自習室は、3階のほぼ全体を使用し、 専用キャレル(個人机)は、1人1席用意されています。それぞれのキャレルは、十分な広さを有し、隣とも仕切りがありますから、勉強に集中することができます。 たくさんの荷物の収納が可能なワゴンも一つずつ置いてあります。もちろん個人用ロッカーも1人で1つ使うことができます。 
     全席にLANに接続可能な情報コンセントが設置してありますので、自席に居ながら判例や文献のデータベースにアクセスしたり、学修支援システムを利用したりすることもできます。自習室は、24時間利用可能としているため、IDカード(学生証)携帯者のみが入館できます。また、夜間は法科大学院棟の入り口が閉鎖され、IDカードを携帯しないものは入室することができません(2重チェック)。学生が安心して勉強に打ち込めるよう、万全のセキュリティ体制をとっています。
     自習室は自学自習の中心的スペースであり、同じ目標を持った仲間と空間を共有していることでモチベーションアップにもつながります。

  • ラウンジ

     3階の自習室の外には、中講義室ほどのスペースのラウンジがあります。勉強の合間の休憩や、友人同士のオープンな議論の場として使われています。自習室が静かな中で集中して勉強しているのに対して、一旦ドアを開けると、対照的に、賑やかな声や笑い声が響いています。同じようなラウンジは、教室のある地階フロアにも設けられていますが、3階のラウンジが白を基調とした明るい感じであるのに対して、地階のラウンジは茶を基調とした落ち着いた雰囲気です。

    自主ゼミ室

     授業や演習とは異なり、学生同士で議論をし理解を深めることも大事で、自主ゼミ室は、そのために配置されています。自習室の脇にある自主ゼミ室は、自習室に近いので、学生が頻繁に使っています。また、教室のある地階にも、自主ゼミ室があります。こちらは、授業の合間を縫って利用されています。いずれも予約制になっています。

ローライブラリー

 ローライブラリーには、高度な専門知識を備えたローライブラリアンが常駐し、学生や修了生の学修を手厚くサポートしています。ローライブラリーの特徴は・・・
1.どこよりも早く新しい本が入ります。
→「情報を何かで目にした時には、すでにローライブラリーにはあった!」ということがよくあります。
 
2.品揃え(必要とされる本の充実)、在庫数(適切な規模)、設備(適切な配置)の3点がバランスよく追及されています。
 
3.主要な法情報データベースをすべて契約しています。
→TKC、LLI、D1-Law.com、Westlaw Japanを利用することができます。効果的な利用方法は「リーガル・リサーチ」の講義でも触れられますし、ローライブラリーでもサポートします。
 
4.もの(本・雑誌・デジタル資料)と利用者をつなぐ人的環境の充実。
→ライブラリアンは「リーガル・リサーチ」「リーガル・ライティング」の講義を担当するローライブラリアンを含め、スタッフ全員がレファレンスを担当できるスキルを身につけています。
 
 本学のローライブラリーは、法情報提供サービスの宝庫であるだけでなく、法科大学院生活の中での質問・疑問・悩みなども気楽に相談できるアットホームな雰囲気があります。

  •   《 ローライブラリーへの入り口 :ココをCLICK 》

    ~小さいけれど、ぎゅっと中身のつまったライブラリーです~

    ローライブラリーでは、法律学各分野の基本書を中心に図書や雑誌、データベースなどを取り揃え、利用しやすいように配置しています。
     「リーガル・リサーチ」「リーガル・ライティング」の講義を担当するローライブラリアンとスタッフが常駐しており、法曹を志す皆さんを全力でサポートしていきたいと考えています。

    分からないことや困ったことがあれば、遠慮なく声をかけてください。

    ローライブラリー: 開室情報 & 法情報リンク集  ほか

専用教室

  • 法廷教室

     法廷教室は、120周年記念2号館4階の2401教室にあります。ここでは、リーガルクリニックの授業が行われ、学生は実際の訴訟から裁判までの流れを体験します。法科大学院棟内に開設されている渋谷パブリック法律事務所所属の弁護士が、「机上で学んだ法知識をどう実務に反映させるか」を厳しく、しかし熱意を持って指導します。
     法廷教室を舞台に、毎年1年生が「模擬裁判」を行っています。また2年生は、リーガルクリニック〈初級〉の授業の成果として、「公開模擬裁判員裁判」を毎年11月に実施しています。渋谷区に住んでいる方々が裁判員となり、検察・弁護士・裁判官役を担当した学生が本物の裁判さながらに裁判員に訴える真剣な模擬裁判が行われています。どちらも一般公開していますので、興味のある方はぜひご参加ください。(ロースクールTOPICS:平成26年公開「模擬裁判員裁判」開催報告

  • 講義室・演習室

     法科大学院の授業は、法科大学院棟地下1階にある専用教室で行います。
     講義室、演習室に加え、自主ゼミ室、自由に使用できるコンピュータールーム、ラウンジを備えています。また、イベントにも利用できる大講義室もあります。

  • その他の施設

     國學院大學を入ると、正面に大きなモニュメントがあります。
     大学内の施設は、もちろん、法科大学院生も利用することができます。蔵書数約150万冊を超える大学図書館とコンピュータルーム(AMC棟)、カジュアルな「カフェラウンジ若木が丘」、落ち着いた雰囲気の食堂「和(NAGOMI)」、生協(書籍・文具販売・コンビニ)など、大学ならではの施設をどんどん利用してください。
     「和(NAGOMI)」は行ってみたい大学食堂として新聞等で何度も取り上げられ、生協の食堂「メモリアルレストラン」では、平日の朝8時~9時半までの間、栄養バランスを考えた朝定食を150円で提供しています。ハードな学修生活の体調管理にも役立つはずです。

このページに対するお問い合せ先: 大学院事務課(法科大学院)

MENU